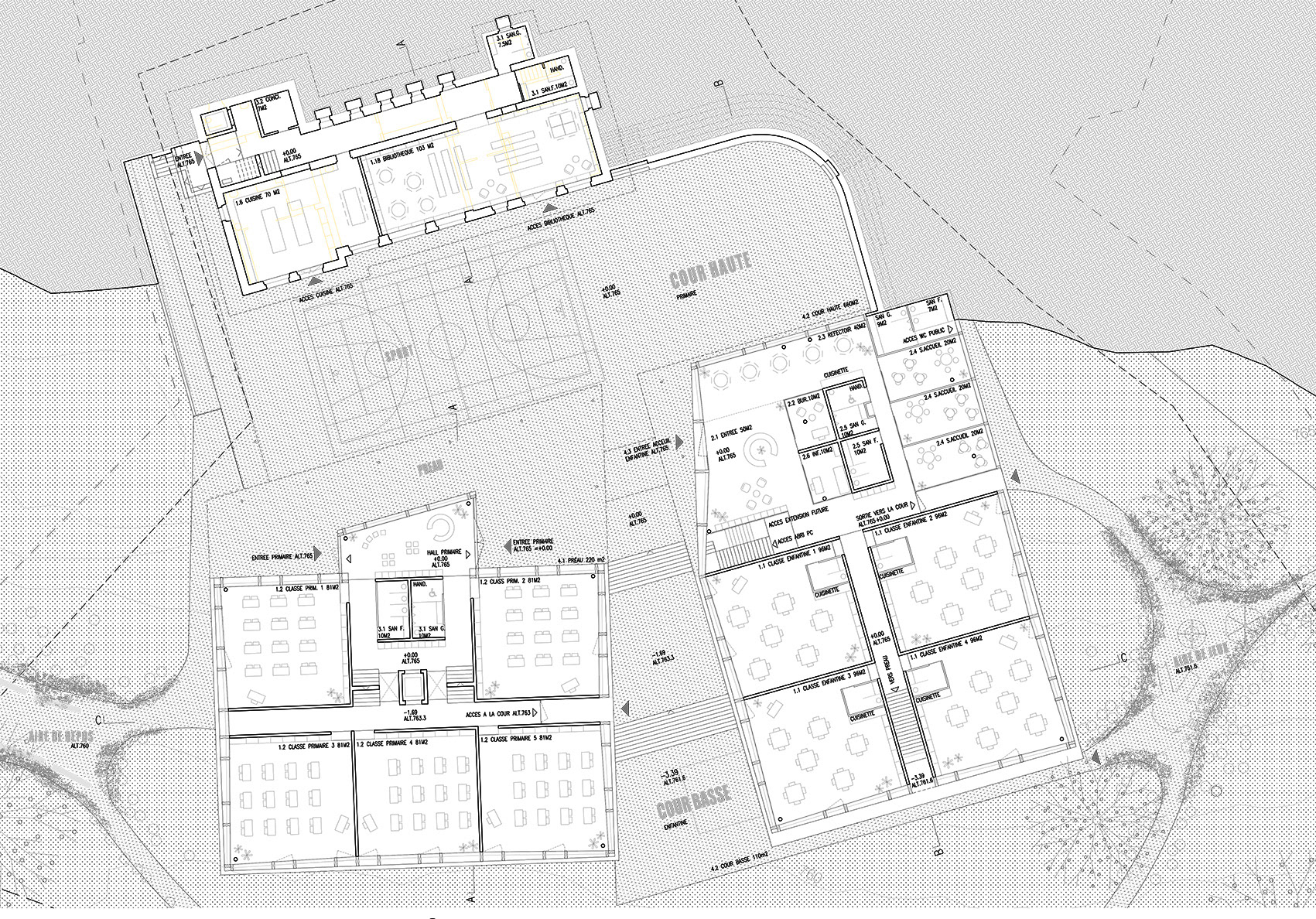
Praroman Primary School Praroman Fribourg 2018 - Competition
This website uses cookies! Accept Decline