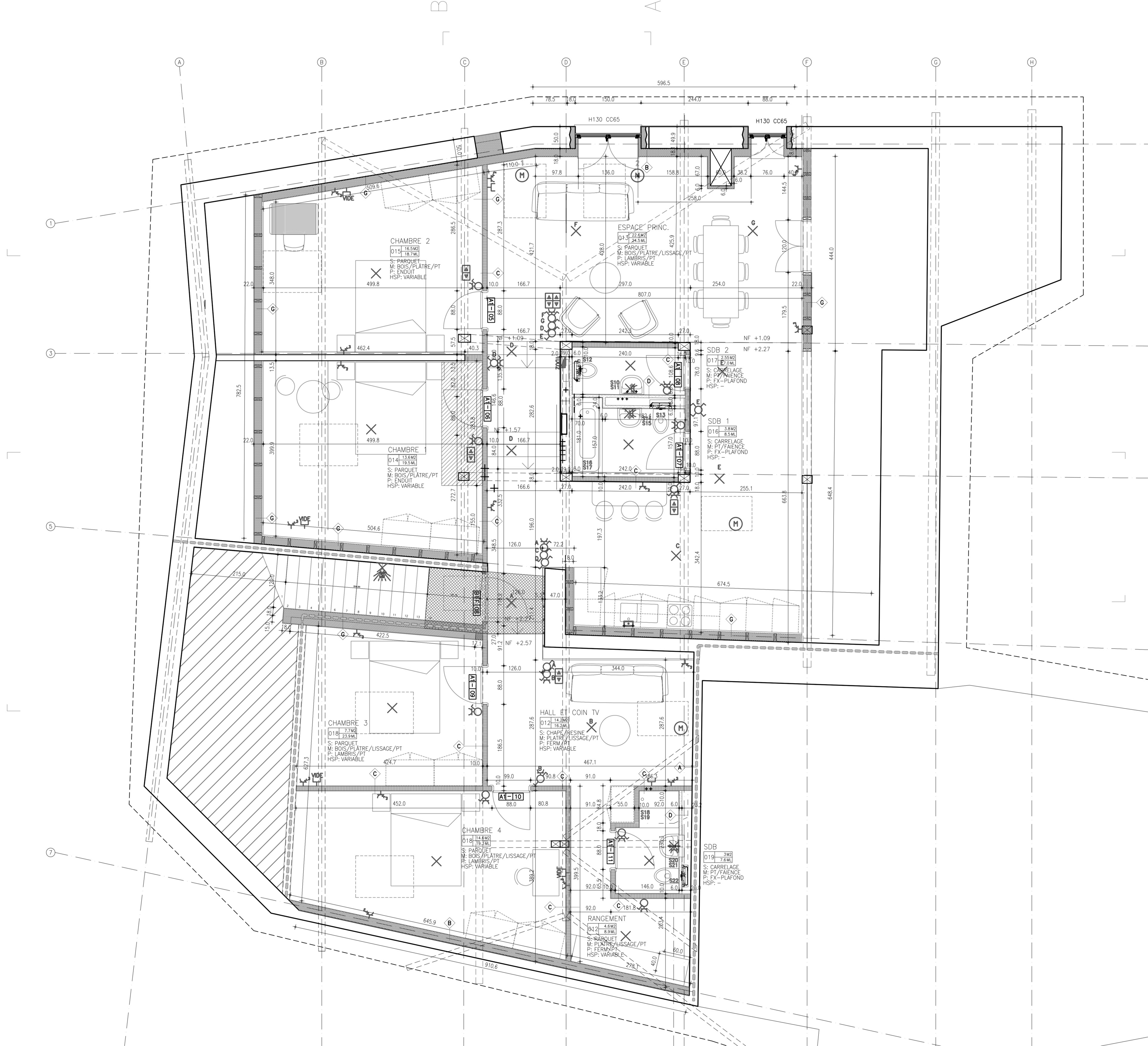
Refurbishment of an old Barn into an Apartment Building L'Abergement Vaud 2018 - In Progress
This website uses cookies! Accept Decline